REQUEST A TOUR If you would like to see this home without being there in person, select the "Virtual Tour" option and your agent will contact you to discuss available opportunities.
In-PersonVirtual Tour

$ 1
Est. payment /mo
Active
124 Marble RD Hardeeville, SC 29927
79,714 SqFt
UPDATED:
Key Details
Property Type Commercial
Sub Type Industrial
Listing Status Active
Purchase Type For Sale
Square Footage 79,714 sqft
Price per Sqft $0
MLS Listing ID 31007007
Lot Size 1.830 Acres
Acres 1.83
Property Sub-Type Industrial
Property Description
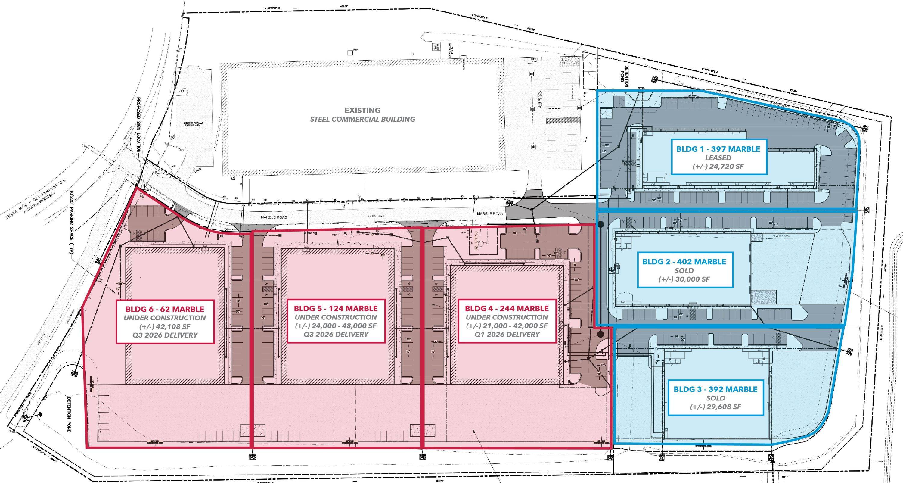
Freedom Industrial Park offers three Class A industrial buildings (42,000-48,000 SF) with 21' clear heights, dock-high and grade-level loading, 3-phase power (400-800 amps, expandable), fiber optic, gas, and build-to-suit office space. The clear-span PEMB buildings with standing seam roofs are ideal for warehouse, distribution, or service users. Just three miles from I-95 and ten minutes from the Port of Savannah, the park sits in an Opportunity Zone with access to South Carolina's 15-year FILOT incentive, which will significantly reduce the TICAM expenses. 124 Marble Road offers 24,000-48,000 SF with two (2) drive-in doors (12'w x 14'h) and two (2) loading docks (8'w x 10'h), build-to-suit office space, and delivery scheduled for Q2 2026. Lease Rate for 48,000+/- SF $15.90 / SF and for 24,000+/- SF $16.50/SF. Contact agent for NNN fees and sale price.
Location
State SC
County Jasper
Listed by Thomas Buist • Lee & Associates - Chas

GET MORE INFORMATION
QUICK SEARCH





