REQUEST A TOUR If you would like to see this home without being there in person, select the "Virtual Tour" option and your agent will contact you to discuss available opportunities.
In-PersonVirtual Tour

$ 950,000
Est. payment /mo
Contingency
0 Ashley Phosphate RD North Charleston, SC 29420
97,792 SqFt
UPDATED:
Key Details
Property Type Commercial
Sub Type Industrial
Listing Status Contingency
Purchase Type For Sale
Square Footage 97,792 sqft
Price per Sqft $9
MLS Listing ID 31004524
Lot Size 2.245 Acres
Acres 2.245
Property Sub-Type Industrial
Property Description
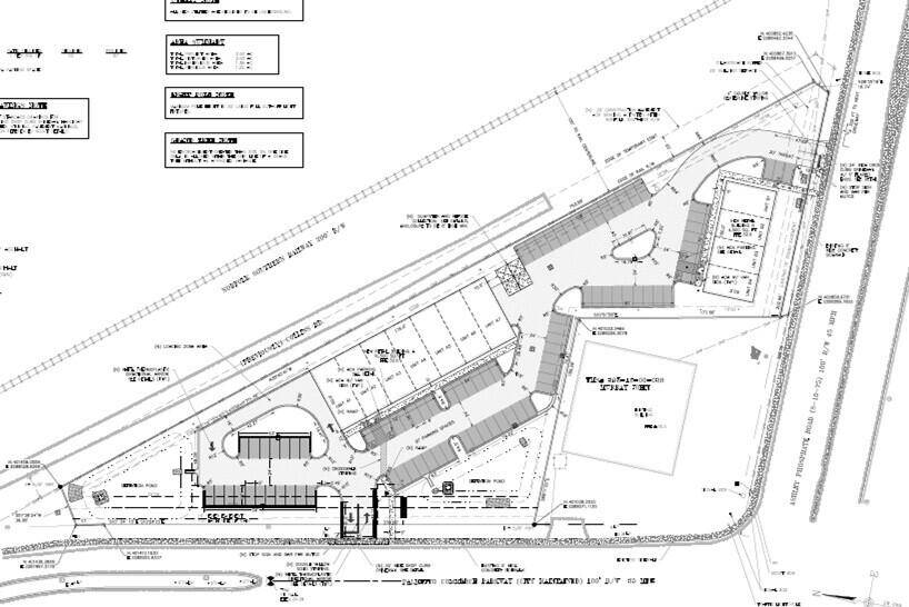
+/- 2.245 acre site zoned M-1 Light Industrial in the City of North Charleston, in Ladson Overlay District. At the lighted intersection of Ashley Phosphate Rd and Palmetto Commerce Pkwy (site does not include 2992 Ashley Phosphate). Property is almost fully entitled, with only a few items outstanding depending on purchaser's final/intended use. Currently proposed on the site is 15,000 SF of retail/flex space in two buildings with ample parking and curb cuts on Ashley Phosphate Rd and Palmetto Commerce Pkwy. The site sits just over half a mile to I-26 via exit 209. Palmetto Commerce Parkway Phase 3 (PCP3) is currently underway, and will provide the last segment in a new connector parkway from Ladson Road to Aviation Avenue near I-26 and Joint Base Charleston, with estimated completion in 2028, as well as a new interchange coming to Weber Blvd/Palmetto Commerce Parkway with anticipated completion in 2026. Engineering plans, along with permits and other due diligence materials available upon request. As of the publishing of this listing, below is the current STATUS of ENTITLEMENTS:CWS is awaiting the DRP submittal to review before SCDHEC can review for the permit to construct the water main. Planning is waiting on CWS approval and Tree mitigation payment. Public works awaiting CWS and Planning approval. SCDOT Final approval awaiting SCDHEC approval, awaiting Planning/public works approvals. Most items are at the finish line and owner has held off submitting the DRP package to CWS and tree mitigation to planning
Location
State SC
County Charleston
Zoning City of North Charleston - M-1 - Light Industrial District
Exterior
Parking Features Surface
Building
Sewer Public Sewer
Water Public
Listed by Brett Rashtchian • RE/MAX Southern Shores

GET MORE INFORMATION
QUICK SEARCH


